|
|
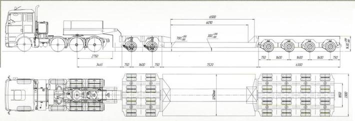
Полуприцеп-модуль 9942-6-М г/п до 120 тн
|
|
Полуприцеп системы модульного типа г/п до 120 тонн
Полуприцеп-тяжеловоз низкорамны 99426М грузоподъемностью 120 тонн, представляющий собой систему модульного типа.
Подобные полуприцепы составляются из модулей (тележек), различающихся числом осей (от 2 до 6), габаритными размерами и, соответственно, грузоподъемностью.
|
 |
В зависимости от условий и задач транспортирования груза модули комбинируются между собой как по длине, так и по ширине.
Модули, составляющие полуприцеп:
- гусак (в зависимости от типа тягача возможно установить дышло);
- передняя тележка, позволяющая снизить нагрузку на тягач;
- грузовая платформа, за счет которой оптимизируются развесовки;
- задняя тележка, воспринимающая различные нагрузки.
|
 |
Полуприцеп-тяжеловоз модульного типа оснащен гидравлической подвеской, которая обеспечивает возможность регулировать грузовую площадку по высоте. Платформа постоянно находится в горизонтальном положении благодаря большому ходу подвески (±300 мм). |
 |
За счет использования гидравлического гусака поддерживается оптимальная нагрузка на седельно-сцепное устройство тягача. Такого типа гусак, изменяющий свое положение, не допускает чрезмерной нагрузки на тягач, следовательно, его повреждения, даже при значительном подъеме или опускании полуприцепа относительно поверхности дороги. Применение гусака вместо дышла позволяет не использовать дополнительный груз (балласт) и сокращает общую длину автопоезда на 3-5 м.Высокая маневренность полуприцепа и оптимальные условия поворота достижимы за счет использования системы принудительного управления. |
Технические характеристики |
|
Масса перевозимого груза, кг |
120000 |
Допустимая полная масса, кг |
160000 |
Масса снаряженного полуприцепа, кг |
40000 |
Нагрузка на седельное устройство, кг |
до 30000 |
Нагрузка на дорогу через шины, кг |
до 130000 |
Шины |
235/75R17,5 |
Количество осей / число колес, шт |
6 / 48 + 4 (запасные) |
Погрузочная высота платформы, мм |
700 |
Ширина платформы, мм |
3300 (изменяется по желанию заказчика) |
Длина рабочей площадки, мм |
6800 (изменяется по желанию заказчика) |
Вышеперечисленные характеристики могут быть изменены по желанию заказчика.
Квалифицированную консультацию по оптимальному подбору полуприцепов Вы можете получить у наших менеджеров.

Другие товары раздела «Полуприцепы для нестандартных перевозок»:

|
СП 994271
Полуприцеп г/п 60 тн специализированный для перевозки железобетонных конструкций и мостовых балок
|

|
ЧМЗАП 706010-010
Производитель: ЧМЗАП
Система транспортных средств модульной конструкции г/п от 58,0 тн до 176,0 тн
|

|
СП 8376-РТ
Полуприцеп г/п 50 тн специализированный для перевозки труб
|

|
АСС 935905 30т кл
Полуприцеп г/п 30,0т. для перевозки ж/б полурам, техники со съемной фермой
|

|
АСС 935904 20т кл
Полуприцеп г/п 20т для перевозки ж/б полурам, техники со съемной фермой
|

|