|
|
Специальное предложение!
Кран строительный Умелец-500
Производитель: СВПК
|
|
Кран строительный Умелец-500, грузоподъемность 500кг, высота подъема груза до 80м
- Строительный подъемник Умелец-500грузоподъемностью 500 кг. предназначен для подъема и опускания строительных материалов и оборудования массой до 500 кг. Подъемник устанавливается ровной площадке любого этажа строящегося здания, на перекрытии. Для установки на крыше здания или сооружения необходимо обязательно защитить подъемник от попадания атмосферных осадков.
- Эксплуатация строительного подъемникаУмелец-500разрешается при температуре не выше плюс 40 град С и не ниже минус 40 град С и влажности 75% при плюс 35 град С. В части воздействия климатических факторов подъемник соответствует У2 по ГОСТ 15150.
- Подъемник является переставным грузоподъемным механизмом, перемещаемым с одного участка работы на другой вручную. Подъемник передвигается с помощью двух человек путем поднятия передней части подъемника и его перемещения за счет роликовых колес, установленных на задней части подъемника.
- Высота подъема груза на подъемнике до 80 м. Скорость подъема груза не менее 44 м/мин. Режим работы механизма 3М по ГОСТ 25835. Напряжение и частота электрического тока 380В, 50Гц. Мощность двигателя 4,0 кВт.
- Устойчивость подъемника при подъеме и опускании груза обеспечивается путем установки противовесов в количестве 6 штук.
- Управление осуществляется с электрического пульта управления и кнопочного тельферного поста.
|
|
Основные элементы конструкции и размеры |
|
 |
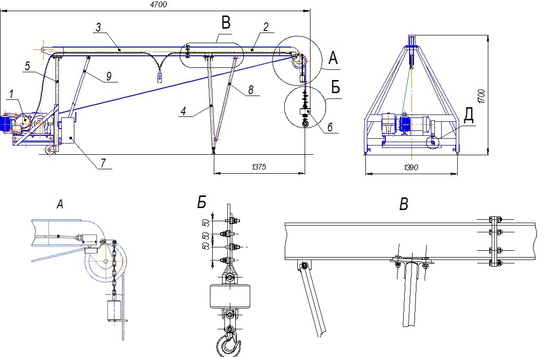
Подъемник Умелец-500 поставляется в разобраном виде. Основные элементы конструкции указаны на схеме:
1 - лебедка электрическая, 1шт.; 2 - балка, 1 шт; 3 - балка, 1шт.; 4 - стойка, 1шт.; 5 - стойка, 1шт.; 6 - подвеска, 1шт.; 7 - груз (противовес), 6 шт.; 8 - стяжка, 2шт.; 9 - стяжка, 2 шт. В комплект поставки также входят крепежные изделия (болты, гайки, шайбы), паспорт на лебедку У5120.60, паспорт и руководство по эксплуатации (совмещенные).
Балки 2 и 3 изготовлены из двутавра №14 с приварными фланцами для крепления между собой в единую пролётную балку болтовым соединением М12. Стойки и стяжки выполнены из труб круглого сечения. Стяжки крепятся к стойкам и пролётной балке болтовым соединением М10.
|
|
Подъемник строительный УМЕЛЕЦ-500: основные характеристики |
|
Характеристика
|
Значение
|
Режим работы/класс нагружения по ГОСТ 25835
|
3М/В3
|
Грузоподъемность, кг, не более
|
500
|
Высота подъема груза, м
|
80
|
Скорость подъема груза, м/мин, не менее
|
44,0
|
Диаметр каната (марк. группа 200, ГОСТ 2688), мм
|
4,1
|
Длина каната, м
|
85
|
Диаметр барабана лебедки, мм
|
159
|
Режим работы электрооборудования по ГОСТ 183
|
S3 (ЭПВ-25%)
|
Напряжение и частота тока, В/Гц
|
380/50
|
Тип электродвигателя
|
АИР100L4
|
Мощность электродвигателя, кВт
|
4,0
|
Тип тормоза
|
ТКГ-160М
|
Тип редуктора
|
1Ц2У-160-20
|
Масса без противовесов, кг, не более
|
220
|
Масса противовесов, кг, не менее
|
210
|
|
|
Гарантия на кран Умелец-500 составляет 12 месяцев со дня приобретения подъемника. |
|

Другие товары раздела «Краны - подъемные устройства»:

|
Кран Умелец
Производитель: СВПК
Подъемник строительный «УМЕЛЕЦ» предназначен для подъема и перемещения во внутрь здания грузов до 320 кг.
|

|
УПМ
Производитель: СВПК
УПМ предназначено для подъема-опускания и перемещения груза массой до 1000кг и Н=3,0м
|

|
Кран Шабашник
Производитель: СВПК
Приспособление грузоподъемное Шабашник предназначено для подъема, удержания, и опускания груза массой не более 150 кг
|

|
Тренога Т-500
Производитель: СВПК
Тренога перегрузочная ТП-500 предназначена для подъема, удержания, и опускания груза выше или ниже плоскости основания треноги массой не более 500 кг.
|

|
Тренога Т-250
Производитель: СВПК
Тренога перегрузочная ТП-250 предназначена для подъема, удержания, и опускания груза выше или ниже плоскости основания треноги массой до 250 кг.
|

|
Кран козловой ручн.
Производитель: ---
Краны предназначены для подъема и перемещения груза весом в пределах номинальной грузоподъемности.
|

|
HE 300
Производитель: Europea
Подъемник типа КБК строительный, разборный грузоподъемностью 300кг, Н=40м, вылет консоли 1,14м, напряжение 220Вт
|

|
Кран козловой ручн.
Производитель: ---
Кран козловой легкий ручного управления.
|

|
HE 500
Производитель: Europea
Подъемник - кран строительный HE500 грузоподъемностью 500 кг, высота подъема до 40м, вылет консолт 1,12м, напряжение 220 Вт
|

|
HE1000
Производитель: Europea
Подъемник строительный HE1000 разборный грузоподъемностью 1000кг, Н=40м, вылет консоли 1,12м, напряжение 380ВТ
|

|