|
|
фасадный подъемник серии ZL
Производитель: STROS
|
|
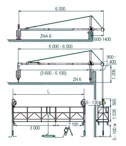
грузоподъемность от 200 до 1000 кг, длина по фасада от 2,0м до 12,0м, высота подъема до 100м
ПОДВЕСНЫЕ ЛЮЛЬКИ ТИПОВОГО РЯДА ZL
ZL 2, ZL 3, ZL 4, ZL 5, ZL 6, ZL 7, ZL 8, ZL 9, ZL 10, ZL 11, ZL 12
- Люльки сконструированы в виде составной конструкции, обеспечивающей сборку конструкции любых размеров в диапазоне с 2 до 12 метров.
- Несущая конструкция люльки сварена из качественных стальных профилей, пол изготовлен из алюминиевого листа с противоскользящей отделкой. Отдельные узлы конструкции в требуемое целое соединены при помощи прочностных болтов и самостопорных гаек. Для перемещения на стройке люлька оснащена колесами.
-Подвесная консоль выполнена в виде сборной, с регулируемой укосиной и регулируемой общей длиной. Люлька предложена в передвижном исполнении, и после снятия колес также в стационарном исполнении. Провес консоли уменьшен усилительным канатом, и стабильность консоли в соответствии с предписанной величиной обеспечена при помощи противовеса.
- Все стальные части платформы и подвесной консоли оснащены цинковым покрытием.
Привод люльки выполнен посредством пары механизмов подъема, оснащенных в соответствии с ЧСН ЕН 1808: Предохранителем перегрузки, Ограничителем скорости, Ловителем, Аварийным опусканием, Устройством контроля наклона площадки, Концевым выключателем
Питание подвесным кабелем, шкафом управления c главным выключателем, переключателем направления, сигнализацией перегрузки и ртутным выключателем, реагирующим на изменение наклона площадки люльки.
ПОДВЕСНАЯ ЛЮЛЬКА С ПОДВЕСНЫМ УСТРОЙСТВОМ:
Подвесное устройство предназначено для отделки углов зданий, другим способом не доступных. Перекос можно выполнить на одном или обоих концах люльки. Размер перекоса неизменный и составляет 1 метр. Подвесное устройство применимо на левой, и также правой стороне люльки, и имеется возможность его сочетания с торцевым подвесом.
Технические характеристики
Наимено-вание |
Длина(м) |
Состав |
Масса |
Распределение груза на 1 п.м. длины платформы |
Грузоподъемность при неравномерном распределении груза |
Подвес торцевой |
Подвес |
(кг) |
АСТРО |
ТИТАН |
АСТРО |
ТИТАН |
АСТРО |
ТИТАН |
(кг/1 п.м.) |
(кг) |
ZL 2 |
2 |
2 |
284 |
210 |
420 |
420 |
420 |
420 |
ZL 3 |
3 |
3 |
322 |
210 |
630 |
630 |
630 |
630 |
ZL 4 |
4 |
2+2 |
364 |
210 |
840 |
840 |
840 |
840 |
ZL 5 |
5 |
2+3 |
402 |
210 |
180 |
1050 |
900 |
1050 |
750 |
ZL 6 |
6 |
3+3 |
440 |
190 |
140 |
1140 |
860 |
1084 |
500 |
ZL 7 |
7 |
2+3+2 |
482 |
140 |
110 |
1100 |
600 |
850 |
410 |
ZL 8 |
8 |
3+2+3 |
525 |
125 |
88 |
900 |
510 |
632 |
370 |
ZL 9 |
9 |
3+3+3 |
558 |
108 |
74 |
735 |
468 |
568 |
355 |
ZL 10 |
10 |
2+3+3+2 |
598 |
93 |
63 |
650 |
430 |
520 |
325 |
ZL 11 |
11 |
3+3+2+3 |
641 |
81 |
54 |
590 |
385 |
481 |
302 |
ZL 12 |
12 |
3+3+3+3 |
674 |
71 |
46 |
556 |
365 |
455 |
280 |
Ширина
|
м |
0,7 |
Высота подъема основная |
м |
45 |
Высота подъема максимальная |
м |
100 |
Вылет |
мм |
700-1400 |
Подъемная скорость |
м/мин |
8,5 |
Система напряжения |
3x400 V50 Hz+ N+E |
Мощность эл. двигателей |
кВт |
2x1,1 |
Масса агрегата ТИТАН |
кг |
45 |

Другие товары раздела «Фасадный подъемник L=6m и L=8m »:

|
ФП ZLP630
Производитель: ---
фасадный подъемник ZLP630 L=6 m г/п 630 кг.
|

|
ФП 3851 Б-020
фасадный подъемник 3851 Б-020 г/п 300кг., L=6 м., высота подъема до 150 м, консоли 0,9; 1,5 и 2,5м.
|

|
ФП 3851 Б-020А
фасадный подъемник 3851-Б-020А, L=6 м, г/п 500 кг., высотой подъема до 100 м., консоли 0,9; 1,5 и 2,5 м.
|

|
ФП 3851 030АР
Разборный фасадный подъемник 3851 030АР, грузоподъемностью 300 кг и 500кг, длиной по фасаду 8,0 м
|

|
ФП 3851 020АР
фасадный подъемник 3851 020АР, L=6 м, г/п 500 кг., с разборным каркасом, высотой подъема до 100 м., консоли 0,9; 1,5 и 2,5 м.
|

|