Каталог-магазин строительной техники: строительные краны, подъемники, люльки, лифты, строительные леса, строительное оборудование, прицепы, полуприцепы, панелевозы, лебедки, тали, тельферы.

Мегатехника. Каталог-магазин строительной техники: строительные краны, подъемники, люльки, лифты, строительные леса, строительное оборудование, прицепы, полуприцепы, панелевозы, лебедки, тали, тельферы.

г. Тверь, ул. Трехсвятская, 28-34
http://www.megatechnic.ru

770910@rambler.ru

skaip - megatech2011

Разделы каталога техники

Производители строительной техники

Главная

О магазине

Каталог строительной техники

Оформить заказ

Производители строительной техники

Контакты

Заказ пуст

Лебедки ручные червячные

ЛРЧ500. Лебедка червячная VS-500 г/п 500 кг с канатом 25 м

Производитель: TOR

В корзину (Заказать)

Лебедка ручная червячная ЛРЧ (VS)- 500 с тяговым усилием 500 кг с длиной каната 25 м

ЛРЧ500. Лебедка червячная VS-500

Лебедки монтажные ручные модели VS предназначены для ручного подъема и перемещения грузов с намоткой металлического каната (троса) на барабан. В качестве приводного механизма на лебедках модели VS используется червячная пара.
Лебедки не предназначены для подъема и перемещения людей.
Лебедки не предназначены для работы в пожаро- и взрывоопасных зонах.
Температура окружающей среды от -20 до +40 град. С.
Допускается эксплуатация лебедок на открытом воздухе. При попадании влаги по окончании работы протереть открытые от смазки места лебедки сухой салфеткой.

 

 

 

 

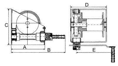
лрч чертеж

Технические характеристики

Значение

Тяговое усилие, кг

500

Диаметр каната, мм

6,8

Длина каната, м

25,0

Комплектация канатом

+

Скорость навивки, м/мин

1,0

Масса с тросом, кг

14

Габаритные размеры, мм

А

В

С

D

Е

 180 

 360 

 180 

 260 

 240 

Артикул

113057

Мегатехника. Каталог-магазин строительной техники

Другие товары раздела «Лебедки ручные червячные»:

ЛРЧ250. Лебедка червячная VS-250 г/п 250 кг с канатом 20м

505 010

ЛРЧ250. Лебедка червячная VS-250 г/п 250 кг с канатом 20м В корзину (Заказать)

Производитель: TOR

Лебедка ручная червячная ЛРЧ (VS)- 250 с тяговым усилием 250 кг с длиной каната 20 м

ЛРЧ500. Лебедка червячная VS-500 г/п 500 кг без каната

505 050

ЛРЧ500. Лебедка червячная VS-500 г/п 500 кг без каната В корзину (Заказать)

Производитель: TOR

Лебедка ручная червячная ЛРЧ (VS)- 500 с тяговым усилием 500 кг под длину каната 25 м

ЛРЧ1000. Лебедка червячная VS-1000 г/п 1000 кг с канатом 35 м

505 105

ЛРЧ1000. Лебедка червячная VS-1000 г/п 1000 кг с канатом 35 м В корзину (Заказать)

Производитель: TOR

Лебедка ручная червячная ЛРЧ (VS)- 1000 с тяговым усилием 1000 кг с длиной каната 35 м

ЛРЧ1000. Лебедка червячная VS-1000 г/п 1000 кг без каната

505 100

ЛРЧ1000. Лебедка червячная VS-1000 г/п 1000 кг без каната В корзину (Заказать)

Производитель: TOR

Лебедка ручная червячная ЛРЧ (VS)- 1000 с тяговым усилием 1000 кг под длину каната 35 м

Мегатехника. Каталог-магазин строительной техники: строительные краны, подъемники, люльки, лифты, строительные леса, строительное оборудование, прицепы, полуприцепы, панелевозы, лебедки, тали, тельферы.

Мегатехника. Каталог-магазин строительной техники: строительные краны, подъемники, люльки, лифты, строительные леса, строительное оборудование, прицепы, полуприцепы, панелевозы, лебедки, тали, тельферы.

© ООО «Мегатехника», 2008-2023

170100, Россия, г. Тверь, ул. Трехсвятская, 28-34
Телефоны: +7-910-932-29-50
Электронная почта: 770910@rambler.ru

 

Яндекс.Метрика Top.Mail.Ru