|
|
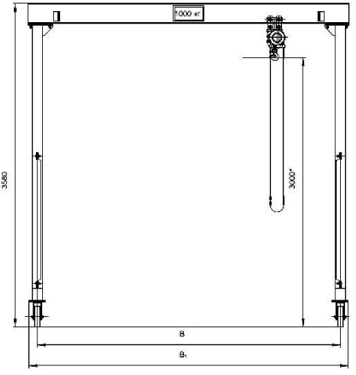
Устройство перегрузочное мобильное (УПМ)
Производитель: СВПК
|
|
УПМ предназначено для подъема-опускания и перемещения груза массой до 1000кг и Н=3,0м
|
| УПМ предназначено для подъема/опускания и перемещения груза при строительно-монтажных, ремонтных и погрузочно-разгрузочных работах на площадках, не оборудованных несущими конструкциями для крепления грузоподъемных механизмов и на складах в отсутствии стационарной грузоподъемной техники и автопогрузчиков. Используется в закрытых помещениях и на открытом воздухе.
| УПМ имеет четыре самоориентирующихся колеса, обеспечивающих работу в условиях ограниченного пространства. Конструкция крана позволяет производить быстрый его монтаж.
Технические характеристики
№ п/п
|
Параметры |
Обозн. в чертеже |
Ед. изм. |
Данные типовых изготавливаемых кранов |
1 |
Грузоподъемность |
|
т |
1,0 |
2 |
Высота подъема |
|
м |
3 |
3 |
Макс. горизонтальное перемещение |
|
мм |
2380 |
3380 |
4380 |
5380 |
4 |
Ширина пролета |
В |
м |
3,0 |
4,0 |
5,0 |
6,0 |
5 |
Длина крана |
В1 |
мм |
3180 |
4180 |
5180 |
6180 |
6 |
Номер профиля балки (двутавр) |
|
|
№20 |
№20 |
№24 |
№24 |
7 |
Масса крана |
|
кг |
300 |
320 |
375 |
405 |
8 |
Колеса полноповоротные |
|
|
С тормозом - 2, |
без тормоза - 2 |
|
|
|
 |
- Устройство состоит из тали, балки пролетной, балок опорных, стоек, укосин, колес поворотных с тормозом, которые крепятся между собой стандартными крепежными изделиями.
- Пролетная балка представляет собой двутавровую балку с приварными фланцами для крепления ее к стойкам. Опорные балки и стойки выполнены из профиля квадратного сечения (или сварены из швеллеров) с приваренными фланцами.
- Рабочим органом устройства является таль ручная цепная ТРШБп -1,0 тн, сведения о которой изложены в паспорте на таль.
|

Другие товары раздела «Краны - подъемные устройства»:

|
Кран Умелец
Производитель: СВПК
Подъемник строительный «УМЕЛЕЦ» предназначен для подъема и перемещения во внутрь здания грузов до 320 кг.
|

|
Кран Шабашник
Производитель: СВПК
Приспособление грузоподъемное Шабашник предназначено для подъема, удержания, и опускания груза массой не более 150 кг
|

|
Тренога Т-500
Производитель: СВПК
Тренога перегрузочная ТП-500 предназначена для подъема, удержания, и опускания груза выше или ниже плоскости основания треноги массой не более 500 кг.
|

|
КС-500
Производитель: СВПК
Кран строительный Умелец-500, грузоподъемность 500кг, высота подъема груза до 80м
|

|
Тренога Т-250
Производитель: СВПК
Тренога перегрузочная ТП-250 предназначена для подъема, удержания, и опускания груза выше или ниже плоскости основания треноги массой до 250 кг.
|

|
Кран козловой ручн.
Производитель: ---
Краны предназначены для подъема и перемещения груза весом в пределах номинальной грузоподъемности.
|

|
HE 300
Производитель: Europea
Подъемник типа КБК строительный, разборный грузоподъемностью 300кг, Н=40м, вылет консоли 1,14м, напряжение 220Вт
|

|
Кран козловой ручн.
Производитель: ---
Кран козловой легкий ручного управления.
|

|
HE 500
Производитель: Europea
Подъемник - кран строительный HE500 грузоподъемностью 500 кг, высота подъема до 40м, вылет консолт 1,12м, напряжение 220 Вт
|

|
HE1000
Производитель: Europea
Подъемник строительный HE1000 разборный грузоподъемностью 1000кг, Н=40м, вылет консоли 1,12м, напряжение 380ВТ
|

|